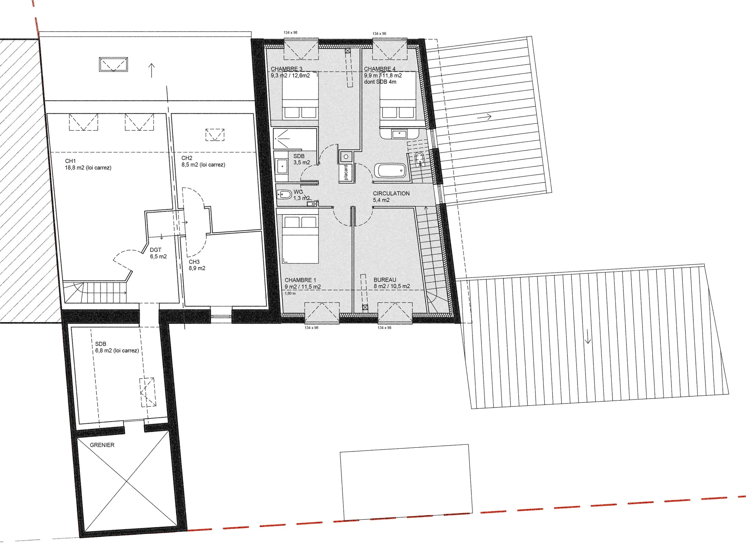
Rénovation et changement de destination d’une écurie en habitation

Mirebeau-sur-Bèze (21)

Mission permis de construire

Surface de plancher : 133m²

L’écurie est conservée dans son volume global. Les travaux projetés portent sur la rénovation du bâti, l’amélioration de son usage en logement, ainsi que la création d’annexes : une extension accueillant la cuisine et un carport.

Des matériaux biosourcés et sobres seront privilégiés : isolation en chanvre (murs et rampants), sol en matériaux naturels (terre cuite, parquet, jonc), murs enduits à la chaux ou en argile, bardage extérieur en planches de bois issues du réémploi de la grange adjacente démolie.

Les éléments d’origine du bâtiment seront conservés dans la mesure du possible, pour maintenir l’authenticité du bâtiment : ferme centrale apparente, auge maçonnée conservée et transformée en banc.

Précédent
Précédent

BEIRE-LE-CHATEL

Suivant
Suivant

YORK_CUISINE